住宅建築のホームページへ

我家の情報コンセント図面


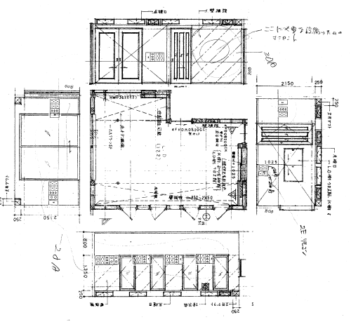
住宅メーカーの設備図は平面図にコンセントの丸い印を付けたものです、 これでは実際の取付け状況が良くわかりません。
そこで、私はコンセント等の位置を住宅メーカーから頂いた平面図と立面図を組み合わせた図面を切り張りで作成し そこに自分で用意したコンセントのシールを張り付けるという作業を行ないました。
結果的にはこの図面により配置を決定し、電気工事が始まるときに現場で高さなどの最終チェックを行ないました。

下の図面は我家のリビングの図面をスキャンしたものです。